Predio comercial todo reformado, Centro, Guarulhos, Cod: 12807
Descrição do imóvel
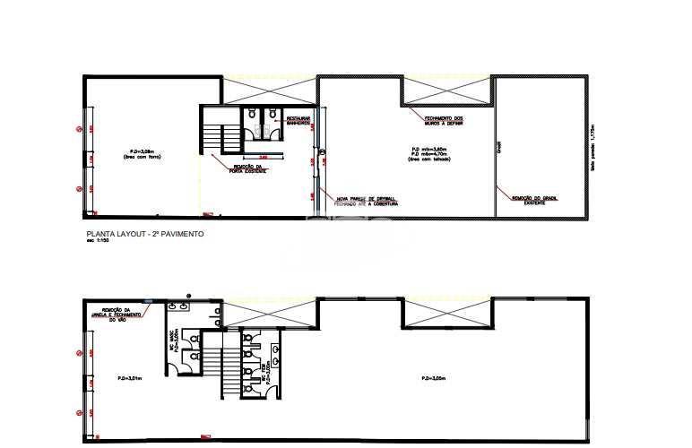
Locação de Prédio Comercial 1200m² - totalmente reformado Excelente oportunidade para empresas que buscam um espaço amplo, versátil e bem localizado! Este imóvel comercial conta com uma área total de 1200 m², distribuídos em 3 pavimentos. Destaques do Imóvel: Perfeito para a criação de áreas administrativas, salas de reunião, escritórios, estoque ou áreas de atendimento. Layout Flexível: Com espaços abertos, o imóvel é facilmente adaptável para atender às mais diversas demandas. O imóvel foi totalmente reformado, com melhorias na infraestrutura elétrica, hidráulica e acabamentos modernos, garantindo a qualidade do espaço para atender às demandas atuais do mercado. Localização Privilegiada: Situado em uma região central, o imóvel oferece fácil acesso às principais vias da cidade, facilitando a logística e o deslocamento de funcionários e clientes. A localização estratégica ainda proporciona proximidade com serviços essenciais e comércio, tornando o imóvel uma solução completa para quem busca unir praticidade, espaço e funcionalidade. Não perca essa oportunidade única de alavancar seu negócio em um imóvel de alto padrão, pronto para atender às suas necessidades.


















